안녕하십니까, 라우종합건설입니다.
저희는 도심형 꼬마빌딩을 대상으로 리모델링 및 대수선공사를 수행하며
현장 여건을 반영한 공정 운영과 디테일 중심의 마감 품질을 기준으로 건물의 가치와 운영 효율을 재정비해왔습니다.
이번에 소개해드릴 프로젝트는 강남구 대치동 꼬마빌딩 리모델링(대수선공사)으로
노후화된 외관과 공용부를 개선하고 건물의 기능성과 이미지 경쟁력을 함께 끌어올리는 방향으로 리뉴얼을 진행했습니다

| Project Overview
| 위 치 | 서울시 강남구 |
| 구 역 | 도시지역, 제3종 일반주거지역, 지구단위계획구역 |
| 용 도 | 근린생활시설 |
| 규 모 | 지하 1층, 지상 5층 |
| 설계사 | 우미 건축사 사무소 |
| 시공사 | 라우종합건설㈜ |
| 총괄디자인 | 라우종합건설㈜ |
| Before

리모델링 이전 건물은 B1F~5F 규모의 준공 30년 이상 노후 건축물로, 기능과 이미지 모두 재정비가 필요한 상태였습니다.
본 대수선공사는 골조만 존치하고 내부·외부를 전면 철거한 뒤
용도를 근린생활시설 → 신사옥으로 전환해 지역의 새로운 기준이 되는 건물로 재구성하는 프로젝트입니다.

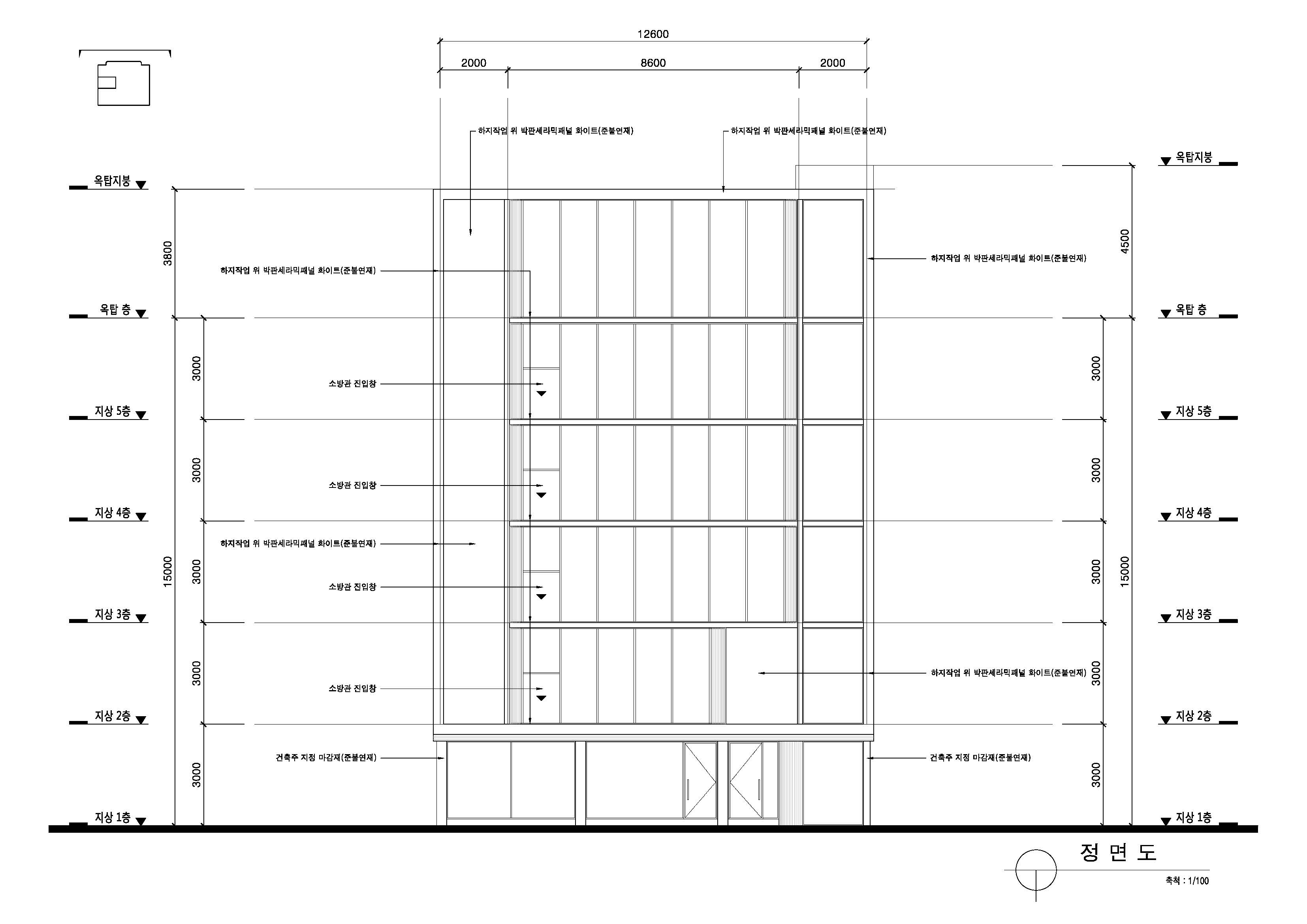
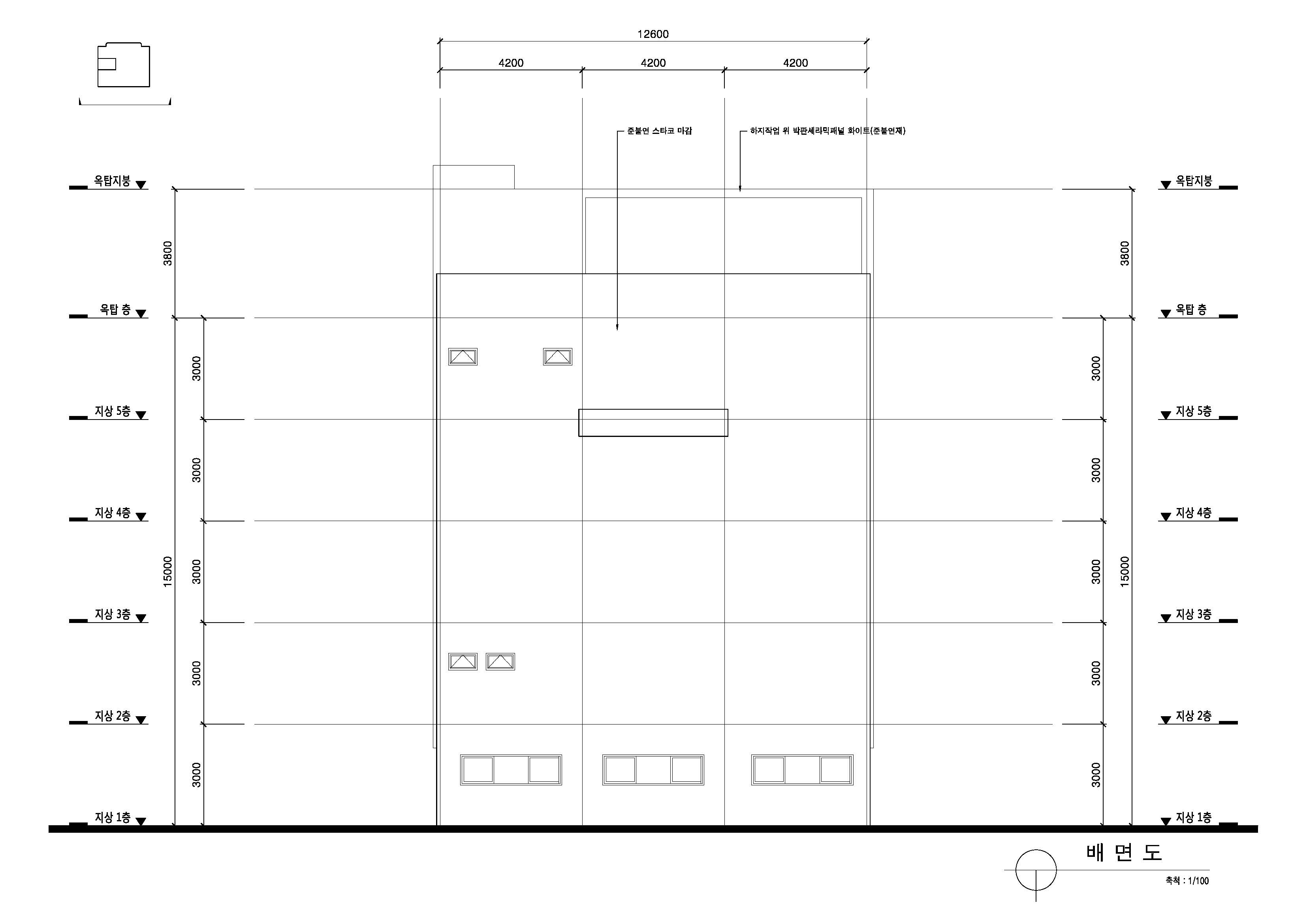
| Elevation




| Space Portfolio글로벌 마케팅 기업의 신사옥으로 리모델링되며,
파사드는 화이트 톤 세라믹 패널과 전면 커튼월로 정제된 개방감과 현대적 이미지를 구축했습니다.
또한 조망용 E/V를 외부에 노출해 파사드의 움직임을 디자인 요소로 전환하고
커튼월을 RF 라인까지 연장해 수직감과 스케일을 강화하며 웅장한 입면 완성도를 구현했습니다.


【 2F : Lobby & Information 】미디어월과 내부 계단으로 브랜드 경험과 동선을 정리하고, 층고 확보로 개방감 있는 로비를 완성했습니다.


【 3F : Office 】 메탈 그리드+바리솔 확산조명으로 톤을 통일하고, 흑경 마감으로 공간감을 확장했습니다.



【 4F : Executive & Meeting 】 조망 축에 회의실을 배치하고, 유리 파티션·바리솔 조명·라운드 디테일로 개방감과 동선 완성도를 높였습니다.



【 5F : Seminar & Banquet 】 웜화이트 무드 기반에 슬라이딩 파티션 키친으로 멀티 활용성을 확보했습니다.


【 RF : Rooftop 】 스카이가든과 전동 어닝으로 프라이버시·가용성을 확보하고, E/V 직결로 동선 효율을 극대화했습니다.



안녕하십니까, 라우종합건설입니다.
저희는 도심형 꼬마빌딩을 대상으로 리모델링 및 대수선공사를 수행하며
현장 여건을 반영한 공정 운영과 디테일 중심의 마감 품질을 기준으로 건물의 가치와 운영 효율을 재정비해왔습니다.
이번에 소개해드릴 프로젝트는 강남구 대치동 꼬마빌딩 리모델링(대수선공사)으로
노후화된 외관과 공용부를 개선하고 건물의 기능성과 이미지 경쟁력을 함께 끌어올리는 방향으로 리뉴얼을 진행했습니다
| Project Overview
| Before
리모델링 이전 건물은 B1F~5F 규모의 준공 30년 이상 노후 건축물로, 기능과 이미지 모두 재정비가 필요한 상태였습니다.
본 대수선공사는 골조만 존치하고 내부·외부를 전면 철거한 뒤
용도를 근린생활시설 → 신사옥으로 전환해 지역의 새로운 기준이 되는 건물로 재구성하는 프로젝트입니다.
| Elevation
| Space Portfolio글로벌 마케팅 기업의 신사옥으로 리모델링되며,
파사드는 화이트 톤 세라믹 패널과 전면 커튼월로 정제된 개방감과 현대적 이미지를 구축했습니다.
또한 조망용 E/V를 외부에 노출해 파사드의 움직임을 디자인 요소로 전환하고
커튼월을 RF 라인까지 연장해 수직감과 스케일을 강화하며 웅장한 입면 완성도를 구현했습니다.
【 2F : Lobby & Information 】미디어월과 내부 계단으로 브랜드 경험과 동선을 정리하고, 층고 확보로 개방감 있는 로비를 완성했습니다.
【 3F : Office 】 메탈 그리드+바리솔 확산조명으로 톤을 통일하고, 흑경 마감으로 공간감을 확장했습니다.
【 4F : Executive & Meeting 】 조망 축에 회의실을 배치하고, 유리 파티션·바리솔 조명·라운드 디테일로 개방감과 동선 완성도를 높였습니다.
【 5F : Seminar & Banquet 】 웜화이트 무드 기반에 슬라이딩 파티션 키친으로 멀티 활용성을 확보했습니다.
【 RF : Rooftop 】 스카이가든과 전동 어닝으로 프라이버시·가용성을 확보하고, E/V 직결로 동선 효율을 극대화했습니다.